Một gia đình trẻ giữa nhịp sống hiện đại sau mong muốn trở về ngôi nhà ấm cúng và thư thái sau những giờ làm việc căng thẳng tại công ty. Nơi họ có thể nhìn cây xanh, ánh nắng, đám mây và cảm nhận làn gió mát mỗi ngày. Họ muốn tận dụng thời gian rảnh buổi tối để gặp gỡ, trò chuyện, chơi và học cùng con. Vì vậy kiến trúc sư đã ưu tiên hàng đầu khi lựa chọn bố trí không gian mang tính kết nối. Đọc bài về thiết kế nhà xinh sài gòn https://nhaxinhsaigon.com/
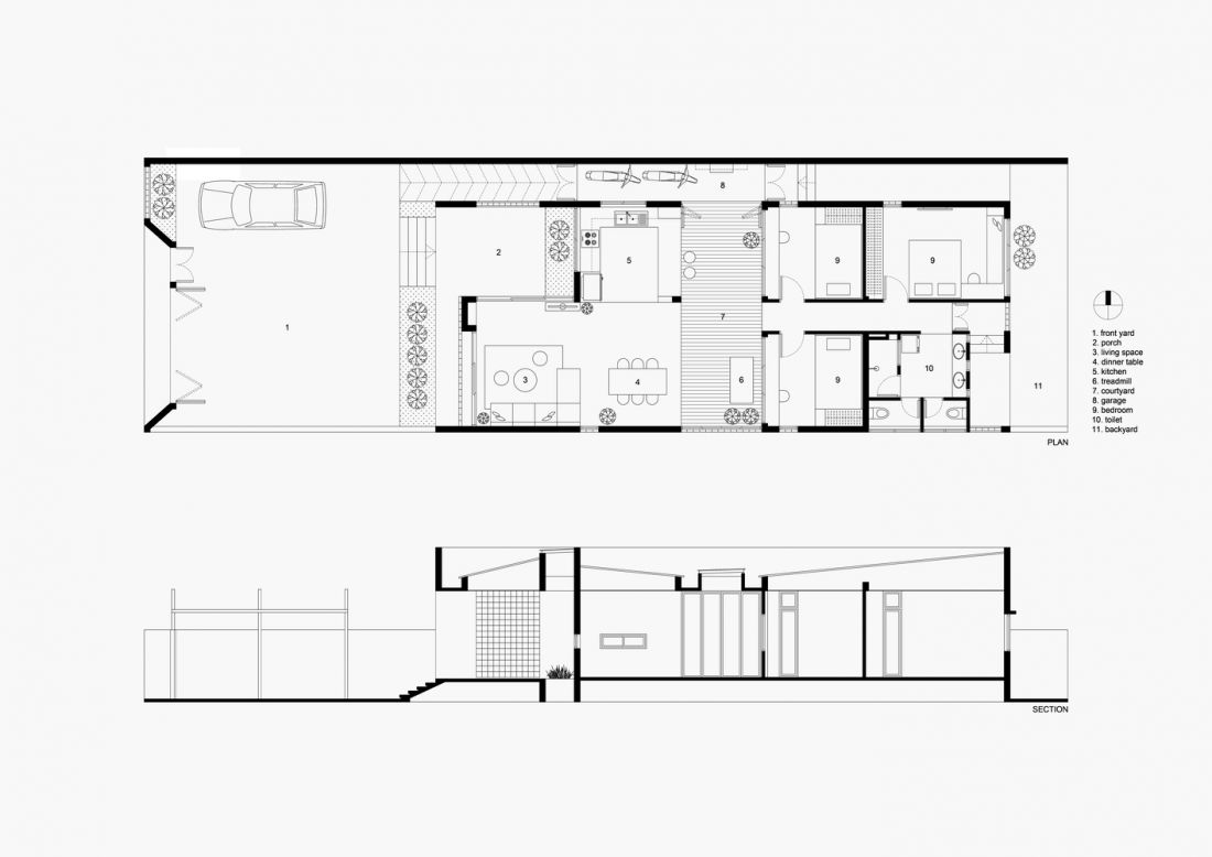
Ngôi nhà cách trung tâm thành phố Bến Tre khoảng 10km có mặt tiền hướng Tây, luôn có ánh nắng mặt trời chiếu thẳng nên kiến trúc sư đã lựa chọn giải pháp nhà 1 tầng, ngăn cách giữa khu sinh hoạt chung và không gian nghỉ ngơi bằng một khoảng sân giữa nhà.
Khoảng sân này là không gian gắn kết các thành viên trong gia đình có công năng linh hoạt như góc làm việc, tập thể dục, khu vui chơi cho trẻ. Ngoài ra còn có cây xanh đan xen tạo không khí trong lành và nhiệt độ mát mẻ hơn.
Cửa chính hướng Bắc, tiếp cận sảnh lớn nên tránh ánh nắng trực tiếp, nơi đây cũng là không gian thư giãn của các thành viên trong gia đình vào buổi tối. Hệ thống thông gió tự nhiên được bố trí xuyên suốt với giải pháp tường 2 lớp là lớp gạch thông gió và lớp cửa kính lùa. Giải pháp này tránh được nhiệt độ nắng nóng, không chỉ giúp thông gió mà còn mang lại sự riêng tư cần thiết.
Về vật liệu, gạch thô là vật liệu sử dụng phổ biến ở khu vực này nên sẽ phù hợp với khí hậu nhiệt đới khi kết hợp với màu gỗ tự nhiên trên nền sơn trắng. Khu vực bếp và phòng tắm tô điểm vài mảng gạch bông họa tiết trắng đen tạo nên nét đẹp hiện đại pha chút mộc mạc giữa thiên nhiên. Xem thêm bài về thiết kế không gian nhà đẹp https://khonggiandep.pro/
Khi lựa chọn giải pháp thiết kế này, kiến trúc sư mong muốn dù sống ở không gian nào thì các thành viên trong gia đình cũng có thể nhìn thấy và trò chuyện cùng nhau, mang đến không khí gia đình ấm cúng hơn. Đây cũng là cảm giác và niềm vui mà kiến trúc sư muốn mang đến cho khách hàng.
Bản vẽ mặt bằng nhà 1 tầng Biên Hòa bên trong rộng rãi, đầy đủ tiện nghi khiến ai cũng mê.
Theo thanhnienviet



Không có nhận xét nào:
Đăng nhận xét